Sala polivalente al posto dell’ex piscina: c’è il progetto esecutivo

Continua l'iter per il recupero dell'edificio abbandonato da molto tempo

Sala polivalente al posto dell’ex piscina: c’è il progetto esecutivo

Sala polivalente: la soddisfazione del sindaco Gusmeroli.

Sala polivalente: nuovo passo avanti

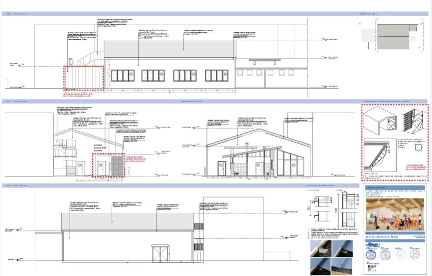
Nella seduta di martedì 26 febbraio, la Giunta Comunale ha approvato il progetto esecutivo dei lavori di ristrutturazione dell’edificio abbandonato da 25 anni, una volta adibito a piscina, per la realizzazione di una sala polivalente presso l’Istituto Comprensivo Giovanni XXIII. “Un immobile ad impatto zero – spiega il primo cittadino Alberto Gusmeroli – che avrà tutte le certificazioni anche antisismiche. Un immobile che guarda al futuro e all’ecosostenibilità. Si tratta di un altro importante passo avanti verso la realizzazione di una sala polivalente tanto attesa e richiesta da genitori e corpo docente ma anche dai cittadini. Una sala che potrà essere utilizzata sia dall’istituto, che dal Comune a beneficio della Città e delle Associazioni Aronesi, uno spazio versatile destinato ad Aula Magna e ad attività scolastiche complementari, oltre che a un utilizzo extrascolastico per incontri, conferenze, concerti e spettacoli teatrali. Uno spazio per tutti! E, come promesso ai ‘meno giovani’, la domenica pomeriggio come sala da ballo”.